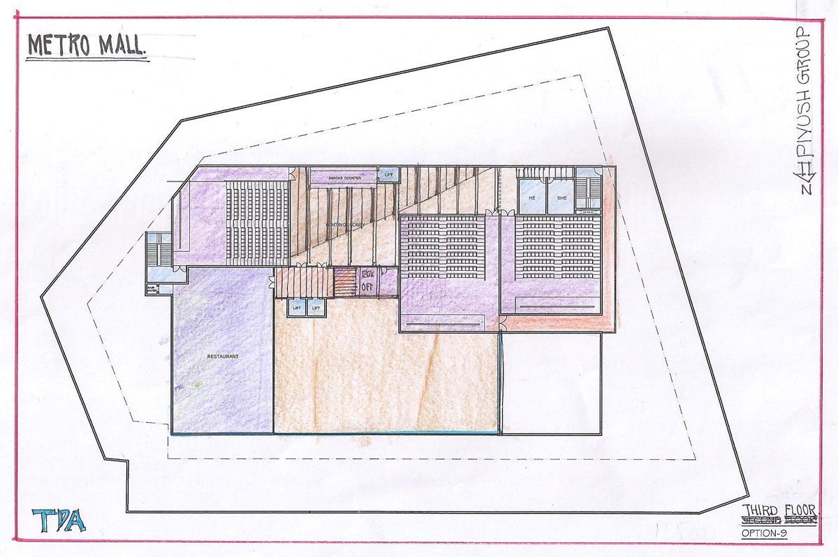
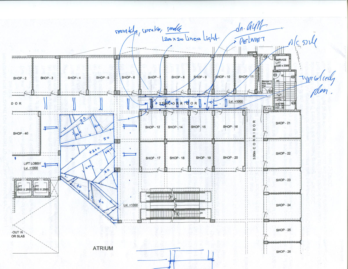
Piyush Group
architecture
retail
NCR
Completed
























